Großzügige helle Wohnung mit Traumbad!
64846 Groß-Zimmern
Objektbeschreibung
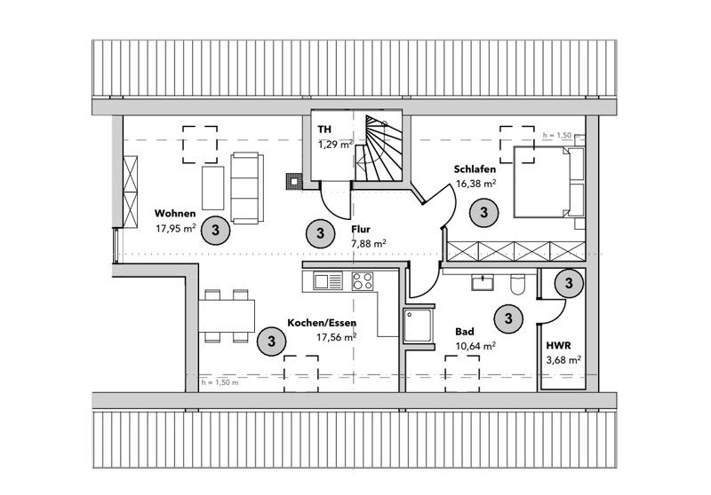
Willkommen Zuhause in Groß-Zimmern! Diese 2015 erbaute Wohnung befindet sich in einem hervorragenden Zustand. In einer kleinen gemütlichen aber modernen Haus mit nur drei Parteien erwartet Sie Ihr neues Wohlfühl-Domizil in Groß-Zimmern. Die lichtdurchfluteten Räume und hohen Decken sorgen bereits beim betreten der Wohnung für einen Wow-Effekt. Vom geräumigen Flur aus erreichen Sie das Wohnzimmer sowie die große moderne Wohnküche. Das Schlafzimmer befindet sich direkt neben dem Badezimmer. Das helle Tageslichtbad begeistert mit seiner Größe und Ausstattung und ist eine echte Wellness-Oase. Im Anschluss zum Badezimmer befindet sich der praktische Hauswirtschaftsraum mit Waschmaschinen- und Trockner Anschluss. In der Wohnung befinden sich bereits Spots in der Decke und sorgen für eine angenehme Beleuchtung.
Zu Ihrer neuen Wohnung gehört ein großer Kellerraum. Im Außenbereich stehen zwei Außenstellplätze für Ihre PKW zur Verfügung.
Ausstattung
-Helle moderne Fliesen im Wohnbereich, Küche und im Flur
-Schick gefliestes Wellness-Bad mit Badewanne und Dusche
-Behagliche Fußbodenheizung
-Zwei Stellplätze im Außenbereich
-Großer Kellerraum
Die Küche kann nach Abprache gegen Abstand vom Vormieter übernommen werden.
Weitere Beschreibung
Bitte beachten Sie diese wichtigen Informationen:
-Die Wohnung hat keinen Balkon
-Haustiere sind nicht gestattet
-Die Wohnung wird an maximal 3 Personen vermietet
-Die Wohnung ist nicht für eine Wohngemeinschaft geeignet
Bitte senden Sie uns bei Interesse eine schriftliche, vollständig ausgefüllte Anfrage.
Telefonische Anfragen können wir leider nicht beantworten. Wir bitten um Ihr Verständnis.
ANGABENVORBEHALT I Die Grundrisse sind nicht zur Maßentnahme geeignet. Für die Richtigkeit und Vollständigkeit der Angaben wird keine Haftung übernommen. Alle Maßangaben sind Circa-Maße.
Grundrisse
Lagebeschreibung
Die Gemeinde Groß-Zimmern hat durch ihre verkehrsgünstige Lage - mitten im Rhein-Main-Gebiet - in den letzten Jahren eine rasante Entwicklung erfahren. Durch attraktive Wohngebiete, ein breit gefächertes Freizeitangebot und eine familienfreundliche Kinderbetreuung, fanden zahlreiche Neubürger - darunter viele junge Familien - den Weg in die Gersprenz-Gemeinde. Das Bildungsangebot ist mit drei Grundschulen und einer kooperativen Gesamtschule für eine Gemeinde mit etwa 15.000 Einwohnern optimal. Für Kinder bis zum Grundschulalter stehen Kindergärten und Kindertagesstätten zur Verfügung. Das Freizeitangebot lässt nahezu keine Wünsche offen, bietet es doch mit ca. 70 Vereinen, einem Hallenbad, einem 18-Loch-Golfplatz, einer Kletterhalle und einer Indoor-Kartbahn mit der einzigen Adventure-Golfanlage in Hessen, eine große Palette an Möglichkeiten. Sowohl Erholungssuchenden als auch sportlich-aktiven Mitbürgern steht ein gut ausgebautes Radwegenetz und auch der nahegelegene Odenwald mit einer Fülle an Ausflugsmöglichkeiten zur Auswahl. Die umliegenden Städte Darmstadt, Frankfurt und auch Aschaffenburg sind durch das optimal ausgebaute Straßensystem ebenso schnell erreichbar. Die RMV-Linie 672 und 679 sorgt für eine sehr gute Verbindung nach Darmstadt, Dieburg, Ober-Roden und Reinheim.
Fachabteilung Vermietung
Telefon: 004961547009215
E-Mail: vermietung@frprojektbau.de

| Objektdaten | |
|---|---|
| Objektart | Wohnung |
| Objektart - Wohnungstyp | Dachgeschosswohnung |
| Objekt ID | B_A_2ZKB |
| Stadt | 64846 Groß-Zimmern |
| Kaltmiete | 835 € |
| Nebenkosten | 190 € |
| Warmmiete | 1.075 € |
| Kaution | 3 Kaltmieten |
| Zustand des Objektes | Neuwertig |
| Baujahr | 2015 |
| Verfügbar ab | Nach Absprache |
| Wohnfläche | 74 m² |
| Etage | 2. OG |
| Anzahl Zimmer | 2 Zimmer |
| Badezimmer | 1 |
| Schlafzimmer | 1 |
| Stellplätze | 2 |
| Ausstattung | |
|---|---|
| Kabelanschluss oder Sat Anschluss | Ja |
| Energiedaten | |
|---|---|
| Heizungsart | Zentralheizung |
| Energieausweis | Bedarf an Energie kWh/(a m²) |
| Primärenergieträger | Wärmepumpe Luft-Wasser |
| Energieverbrauchkennwert | 23.30 kWh/m² |
| Energieeffizienzklasse | A+ |
| Gültig bis | 31.03.2025 |
















