Ihre Vision, Ihre Fläche: Modernes Loft-Büro im Neubaugebiet „Im Münkel“
64380 Roßdorf
Objektbeschreibung
Suchen Sie eine Geschäftsadresse, die so dynamisch ist wie Ihr Unternehmen? Im 2. Obergeschoss unseres markanten Neubaus (Baujahr 2023) erwartet Sie eine lichtdurchflutete Gewerbefläche, die Arbeiten neu definiert.
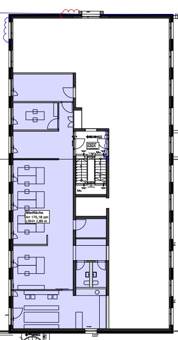
Hier erwartet Sie ein großzügiges Großraumbüro, aktuell durch zwei elegante Wände unterteilt. Sie benötigen einen repräsentativen Empfang und diskrete Einzelbüros? Nach Absprache realisieren wir gerne individuelle Umbauwünsche für Ihr perfektes Raumkonzept. Eine eigene große Küche für das Team, zwei moderne Sanitäranlagen und ein einladender Flurbereich gehören exklusiv zu Ihrer Einheit.
Parken ohne Stress: Vergessen Sie die Parkplatzsuche. Für Sie und Ihre Kunden stehen PKW-Stellplätze sowohl im Außenbereich als auch in der hauseigenen Tiefgarage (auf Anfrage) zur Verfügung.
Machen Sie hier „Arbeiten zum Vergnügen“! Lassen Sie uns gemeinsam besprechen, wie wir diese Fläche an Ihre Ansprüche anpassen können. Wir freuen uns auf Ihre Nachricht und laden Sie herzlich zu einer Besichtigung vor Ort ein.
Ausstattung
-Große Küche mit Sitzmöglichkeiten / Besprechung
-2 WCs
-Garderobe
-Barrierefreier Zugang über den modernen Flur
-Individuelle Raumaufteilung nach Absprache möglich
Weitere Beschreibung
Der Mietpreis versteht sich zzgl. gesetzlicher Mehrwertsteuer.
Grundrisse
Lagebeschreibung
Willkommen in Roßdorf I Das Neubaugebiet „Im Münkel“ bietet eine erstklassige Anbindung und ein professionelles Umfeld. Hier verbinden Sie die Ruhe eines modernen Standorts mit der Präsenz, die Ihr Business verdient.
Die Gemeinde Roßdorf ist eine attraktive und liebenswerte Gemeinde mit gut ausgebauter Infrastruktur und etwas über 12.000 Einwohnern. In nur 15 Minuten erreicht man die Wissenschaftsstadt Darmstadt mit Ihren Einkaufsmöglichkeiten und Sehenswürdigkeiten. Ebenso lädt der nahegelegene Odenwald zu einem Ausflug ein. In Roßdorf kann man vielseitige Sport- und Freizeitangebote in Anspruch nehmen. Hierfür stehen den über 80 örtlichen Vereinen insgesamt 5 Sporthallen zur Verfügung. In den Sommermonaten hat man die Möglichkeit das Freibad zur Abkühlung zu nutzen und in den Wintermonaten die Roßdörfer Open-Air Eisbahn. Die Gemeinde Roßdorf bietet ihren Bürgerinnen und Bürgern eine hohe Lebensqualität und den Unternehmen optimale Standortfaktoren. Eine Übersicht über Organisationen, Geschäfte und Betriebe, Gaststätten und Hotels sowie über die Organe und Dienststellen der Gemeinde Roßdorf erhalten Sie online auf www.rossdorf.de
Fachabteilung Vermietung
Telefon: 004961547009215
E-Mail: vermietung@frprojektbau.de

| Objektdaten | |
|---|---|
| Objektart | Büro / Praxen |
| Typ für Büro und Praxen | Bürofläche |
| Objekt ID | 234 |
| Stadt | 64380 Roßdorf |
| Kaution | 3 Kaltmieten |
| Zustand des Objektes | Neuwertig |
| Baujahr | 2023 |
| Verfügbar ab | Nach Absprache |
| Gesamtfläche | 176 m² |
| Etage | 2. OG |
| Anzahl Zimmer | 5 Zimmer |
| Ausstattung | |
|---|---|
| Boden | Teppich |
| Fahrstuhl | Personenaufzug |
| Energiedaten | |
|---|---|
| Energieausweis | Bedarf an Energie kWh/(a m²) |
| Primärenergieträger | Wärmepumpe Luft-Wasser |
| Energieverbrauchkennwert | 17.00 kWh/m² |
| Energieeffizienzklasse | A |
| Gültig bis | 17.11.2032 |






